Objektbeschreibung
Optional dazu zu erwerben:
Garage: 15.000,00 €
Stellplatz: 10.000,00 €
Erstbezug, provisionsfrei: Hier wird eine hochwertig sanierte Eigentumswohnung in einem renovierten Mehrfamilienhaus angeboten.
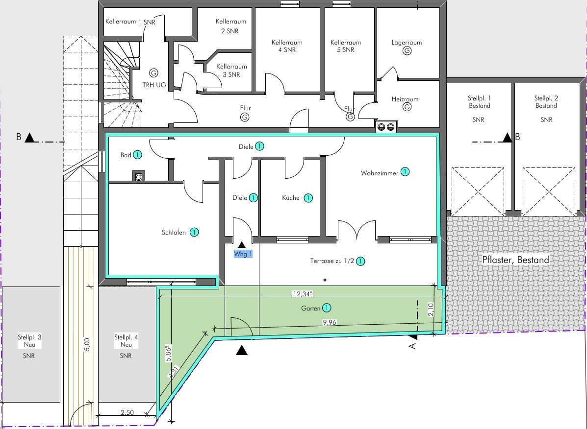
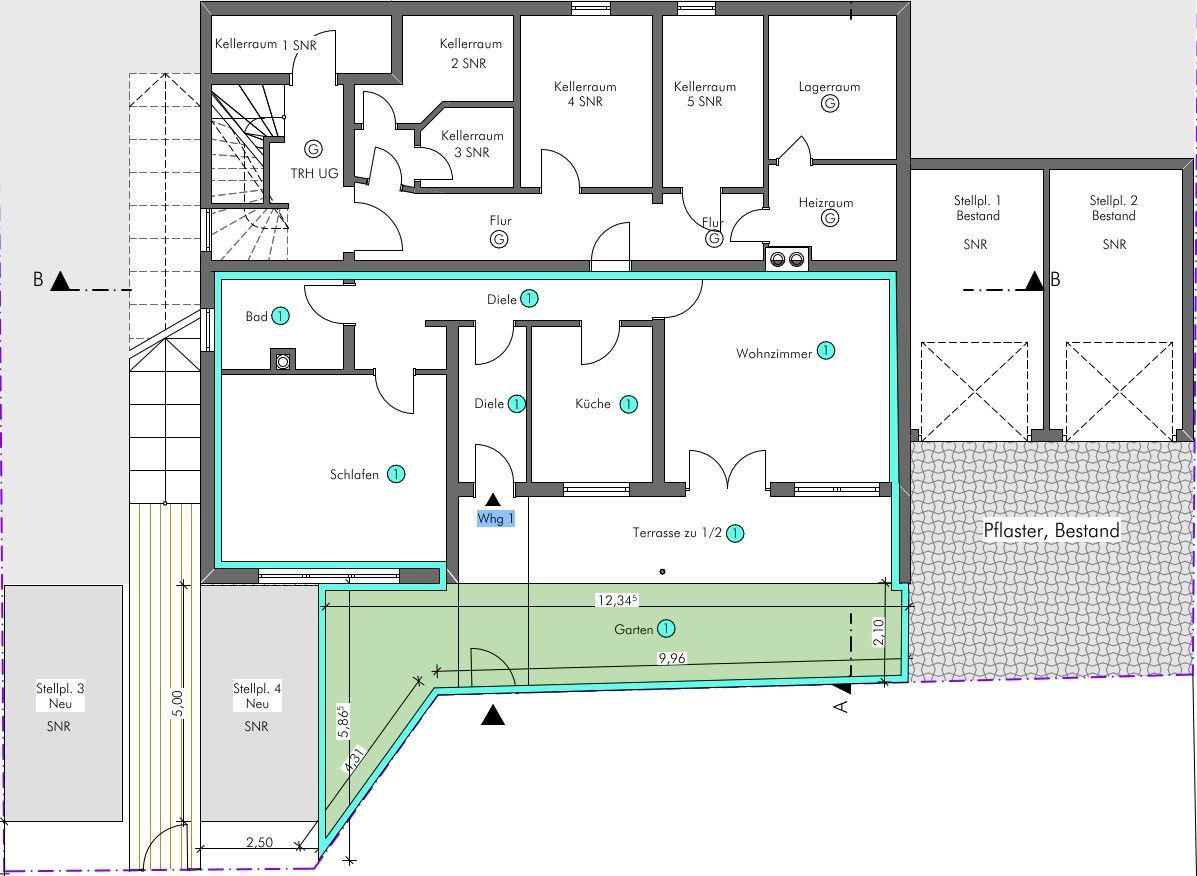
Die Räume sind sehr großzügig geschnitten und mit einem Echtholz-Parkettboden ausgestattet. Des Weiteren gehört ein Kellerabteil dazu, in dem Sie Gegenstände sicher lagern können. Ein Highlight ist die zentrale aber ruhige Lage in einem Wohngebiet, am Ende einer Sackgasse.
Durch eine neue Gas-Zentralheizung (2024) mit neuem Warmwasserspeicher wird effizient geheizt.
Die moderne Eigentumswohnung kann sofort von den neuen Eigentümern bezogen oder vermietet werden.
Kontaktieren Sie uns gerne bei Fragen oder einem Besichtigungstermin.
E-Mail: info@ctrealestate.de
Tel.: 015738969965
Kontaktieren Sie uns
Sanierungsmaßnahmen im Überblick
Wohnungen
- Neue Elektrik: Neue Leitungen, Stromverteiler und Zähleranlage
- Neue Sanitäreinrichtungen in den Bädern
- Neue 60 cm x 60 cm Fliesen im Bad in Grau
- Neue 60 cm x 30 cm Wandfliesen im Bad in Anthrazit
- Neuer Eichenholz-Parkettboden in den restlichen Räumen
- Frisch verputzte (Q4) und weiß gestrichene Wände und Decken in der gesamten Wohnung
- Platziermöglichkeit der Waschmaschine in der Wohnung möglich
Haus
- Neue Gas-Zentralheizung (2024) mit neuem Warmwasserspeicher
- Fassade frisch gestrichen
- Neue zentrale SAT und Klingel-Anlage
- Renoviertes Treppenhaus
Lage
Das Objekt befindet sich in einem ruhigen Wohngebiet, am Ende einer Sackgasse. Nahe gelegen gibt es die Buslinien 609 und 611 und einige Bahnlinien, die Sie mit regionalen und überregionalen Zielen verbinden. In näherer Umgebung finden Sie einige Supermärkte, Restaurants, Ärzte, Cafés, Bäckereien und ein Einkaufszentrum. Auch verschiedene Modegeschäfte, Bars, zwei Buchhandlungen, zwei Fitnessstudios und eine Grün- und Parkanlage sind gut zu Fuß erreichbar.
Ohne Provision
Für das Objekt fällt keine (Makler-)Provision an, da es sich um einen direkten Abverkauf des Bauträgers CTRealEstate/CTConcepts GmbH handelt. Das inserierte Angebot ist freibleibend, Zwischenverkauf sowie Irrtum wird nicht ausgeschlossen.




























