Renovierte 4 Zimmer Wohnung zentral in St. Johannis - Ohne Provision
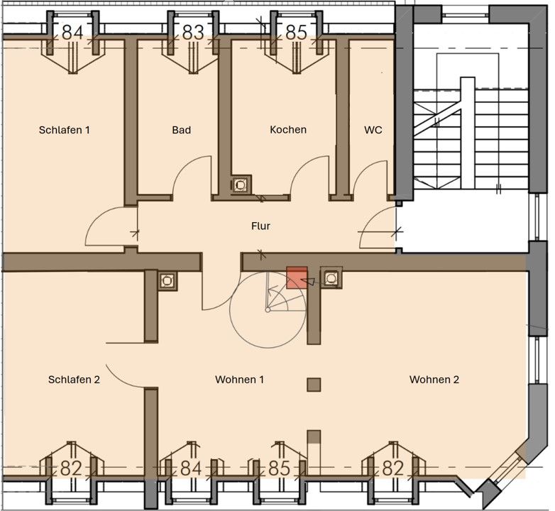
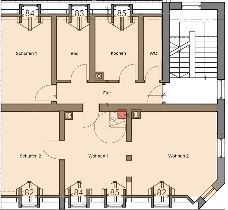
Die Wohnung misst eine Wohnfläche von 81,21 m² + 31,45 m² Nutzfläche (Bodenfläche) im 2. Geschoss der Wohnung.
Erstbezug ohne Provision: Hier wird eine hochwertig renovierte Eigentumswohnung in einem gepflegten Mehrfamilienhaus angeboten.
Die Wohn- und Schlafräume sind sehr großzügig geschnitten und mit einem Echtholz-Parkettboden ausgestattet. Des Weiteren gehört ein Kellerabteil dazu, in dem Sie Gegenstände sicher lagern können.
Die moderne Eigentumswohnung kann sofort von den neuen Eigentümern bezogen oder vermietet werden.
Kontaktieren Sie uns gerne bei Fragen oder einem Besichtigungstermin.
E-Mail: info@ctrealestate.de
Tel.: 015738969965
Kontaktieren Sie uns
Renovierungsmaßnahmen im Überblick
- Neuer Eichenholz-Parkettboden
- Neue Zimmertüren
- Neuer Elektroverteiler
- Neue Infrarotheizkörper
- Frisch verputzte und weiß gestrichene Wände und Decken in der Wohnung
Lage
Das Objekt finden Sie in lebendiger Gegend in Nürnberg St. Johannis. In unmittelbarer Umgebung des Objekts verkehren einige Bus- und Tramlinien und die U-Bahnlinie U3. In Laufnähe gibt es einige Restaurants, Ärzte, Cafés, Bäckereien und Einkaufszentren. Auch ein paar Bars, Grün- und Parkanlagen, Modegeschäfte, Fitnessstudios und Buchhandlungen erreichen Sie.
Ohne Provision
Für das Objekt fällt keine (Makler-)Provision an, da es sich um einen direkten Abverkauf des Bauträgers CTRealEstate/CTConcepts GmbH handelt. Das inserierte Angebot ist freibleibend, Zwischenverkauf sowie Irrtum wird nicht ausgeschlossen.


























